HOME
Quem Somos
Moradias
Apartamentos
VENDA
ARRENDAMENTO
Quintas
Terrenos
Lojas
VENDA
ARRENDAMENTO
Contactos
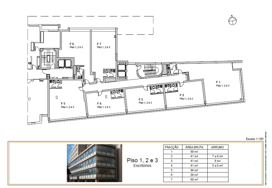
Escritório novo com 89 m2, Porto
Edifício de escritórios, 3 pisos de escritórios com 21 fracções, condomínio não incluído. Ref. 604 Renda: 623,00 €
clique para aumentar