HOME
Quem Somos
Moradias
Apartamentos
VENDA
ARRENDAMENTO
Quintas
Terrenos
Lojas
VENDA
ARRENDAMENTO
Contactos
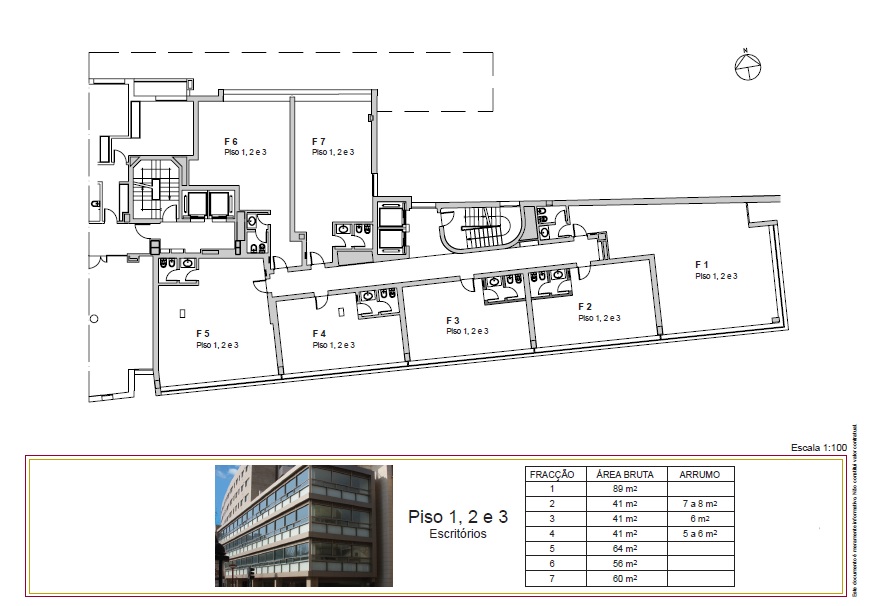
Escritório novo com 56 m2, Porto
Edifício de escritórios, 3 pisos de escritórios com 21 fracções . Área com 56 m2, condomínio não incluído. Ref. 604 Renda: 392,00 €
clique para aumentar